別墅案例 當前位置:首頁>產品展示>別墅案例

- 詳細介紹
項目地址:航民望江園
項目風格:混搭風格
設 計 師:小 龔
項目經理:毛 工
開工日期:2019年06月6日
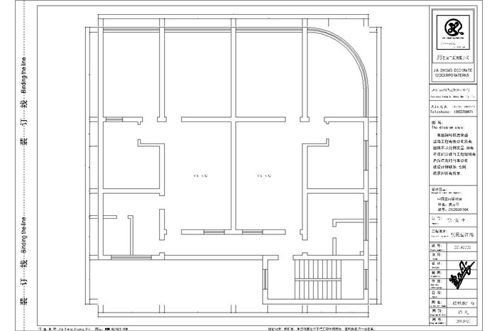
設計說明:混搭風格中,基于一種主要的風格,添加各種不同的元素來進行搭配,在中式混搭裝修風格中,基于中式的裝修來進行混搭,來達到一個完美融合的效果。二樓原始結構圖:

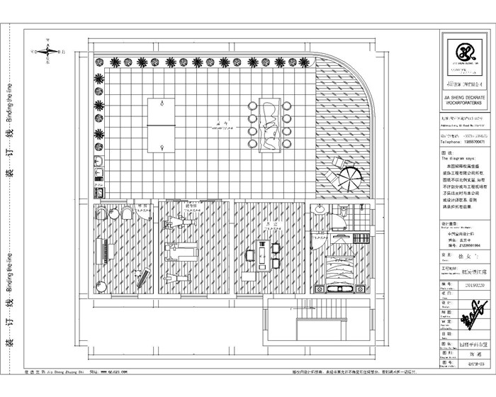
二樓平面布置圖:

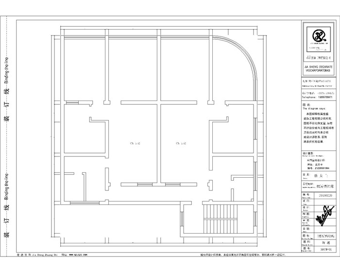
三樓原始結構圖:

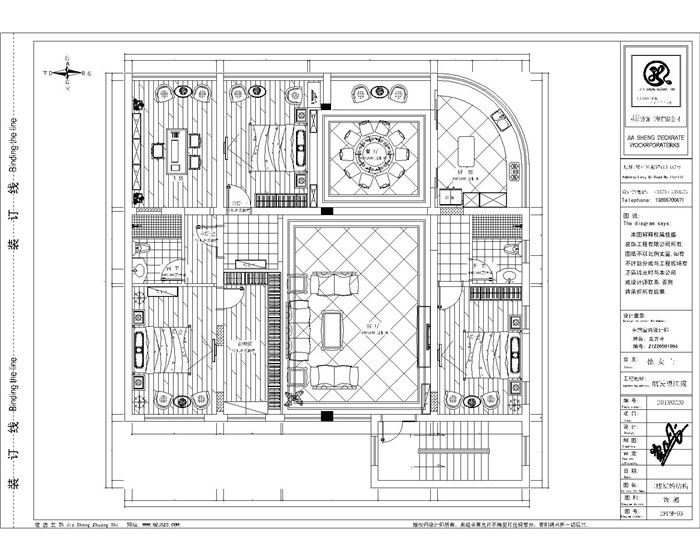
三樓平面布置圖:

四樓原始結構圖:

四樓平面布置圖:

客廳效果圖:

餐廳效果圖:

臥室效果圖:

次臥效果圖:

女兒房效果圖:

起居室效果圖:

次起居室效果圖:

砸金蛋:

業主、設計師、項目經理開工合影:

禮炮慶祝開工大吉:

舉杯慶祝 開工順順利利:

開工第一錘由業主敲響:

水電圖完工:










吊頂完工:







泥工完工:




佳盛裝飾公司簡介
2003年,衢州市佳盛裝飾工程有限公司成立。其業務范圍包括:住宅 、公寓、娛樂空間、辦公空間、陳列展館等工程的裝飾裝修、設計及施工。公司秉承“服務到永遠”的經營理念,誠信打造透明工程,全力營造放心消費環境。用質量來表現,用服務來關懷,依靠客戶口碑來不斷提升佳盛品牌的知名度和影響力。
一直以來,“佳盛人”以客戶的新房我的家為宗旨,以品牌建設為中心,致力于創造完美空間,展現精湛工藝。 在設計上,崇尚人性化、多元化、藝術化、更加強調功能、結構和形式的完整,追求材料、技術、空間的表現深度與精確,創造出別具風格的工作和生活環境。用領先的設計和專業的施工,做品味空間的引領者!
2010年被評為衢州市裝飾行業協會副會長單位;
2011年被衢州市工商行政管理局評為衢州市家庭裝飾消費維權示范單位;
2012年家裝設計大賽中被衢州市廣播電視總臺評為觀眾最喜愛家裝設計獎;
2013年被評為衢州市裝修行業12315消費者維權聯絡站;
2012-2013年被衢州市柯城區住房城鄉建設局評為衢州市家裝行業骨干企業;
2014年被裝飾協會評為衢州市首批倡導綠色裝修單位;
2014年被衢州市工商行政管理局評為衢州市誠信裝飾公司;
2011-2016年被衢州晚報評為十家最值得信賴的裝飾企業;
2016年被市場監督管理局評為衢州市誠信裝飾企業;佳盛裝飾,期待與您共同長期發展!
公司榮譽:


衢州市佳盛裝飾工程有限公司
地址:浙江省衢州市西區雙嶺南路285號(翡翠灣小區東側)
電話:0570- 3068373
手機:13867013688
聯系人:周先生
網址:m.haomeiv.com
長按二維碼 關注佳盛裝飾公眾號

關注【佳盛裝飾】
# 更多精彩內容#
衢州市佳盛裝飾工程有限公司
地址:浙江省衢州市西區雙嶺南路285號(翡翠灣小區東側)
電話:0570- 3068373
手機:13867013688
聯系人:周先生
網址:m.haomeiv.com
- 上一個:蓮花別墅 下一個:上方別墅返回產品列表



