別墅案例 當前位置:首頁>產品展示>別墅案例

- 詳細介紹
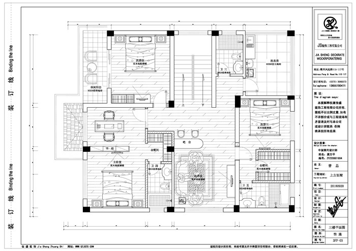
項目地址:上方別墅
項目風格:新中式風格
設 計 師:龔方平
項目經理: 毛 工
開工日期:2018年10月12日新中式風格:新中式風格誕生于中國傳統文化復興的新時期,伴隨著國力增強,民族意識逐漸復蘇,人們開始從紛亂的“摹仿”和“拷貝”中整理出頭緒。在探尋中國設計界的本土意識之初,逐漸成熟的新一代設計隊伍和消費市場孕育出含蓄秀美的新中式風格。在中國文化風靡全球的現今時代,中式元素與現代材質的巧妙兼柔,明清家具、窗欞、布藝床品相互輝映,再現了移步變景的精妙小品。
設計師:龔方平

項目經理:毛工

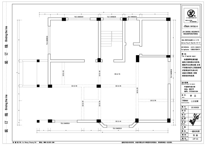
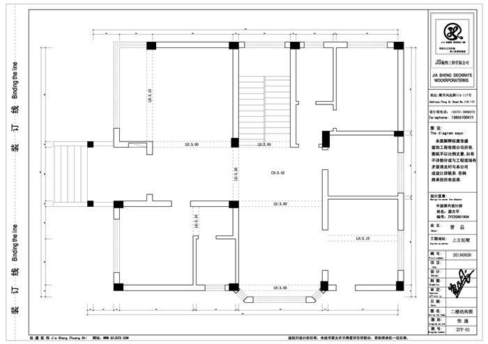
原始結構圖:



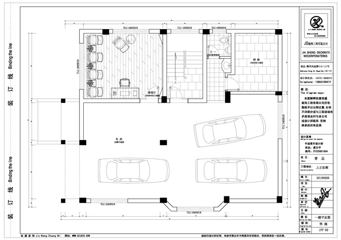
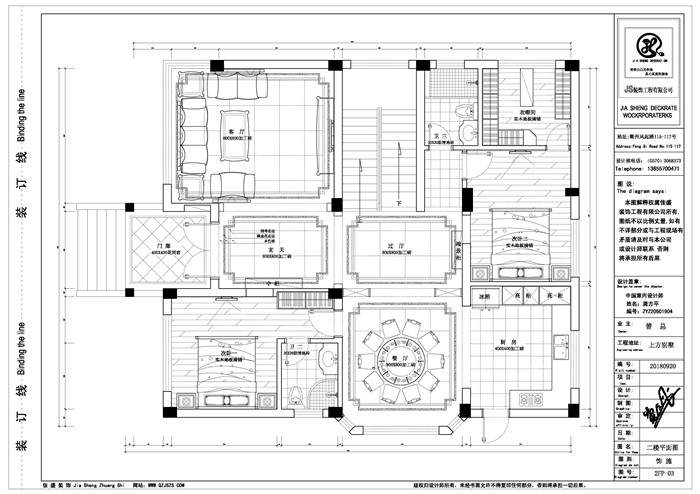
平面布置圖:



客廳效果圖:

起居室效果圖:

餐廳效果圖:

臥室效果圖:

別墅外景:

業主、設計師、項目經理開工合影:

禮炮慶祝開工大吉:

舉杯慶祝 開工順順利利:

施工四大規范

水電完工:








木工完工:






泥工完工:







半成品圖:






公司榮譽:


衢州市佳盛裝飾工程有限公司
地址:浙江省衢州市西區雙嶺南路285號(翡翠灣小區東側)
電話:0570- 3068373
手機:13867013688
聯系人:周先生

衢州市佳盛裝飾工程有限公司
地址:浙江省衢州市西區雙嶺南路285號(翡翠灣小區東側)
電話:0570- 3068373
手機:13867013688
聯系人:周先生
網址:m.haomeiv.com
- 上一個:航民望江園毛總 下一個:杭州天目山民宿返回產品列表



