公寓案例當前位置:首頁>產品展示>公寓案例

- 詳細介紹


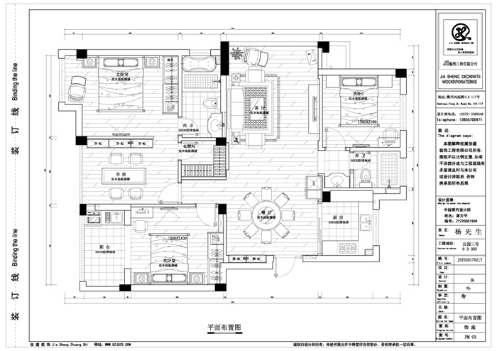
項目地址:公園三號
項目風格:簡美風格
設 計 師:龔方平
項目經理: 毛 工
開工日期:2017年4月9日設計說明:簡美風格的特色是將設計的元素、色彩、照明、原材料簡化到最少的程度。但是對材料的色彩質感要求很高。 因此,簡約的空間設計非常含蓄,往往能起到以少勝多,以簡勝繁的效果。藝術創意宜簡不宜繁,宜藏不宜顯(齊白石語),這些都是對簡潔最精辟的闡述。
設計師:龔方平

項目經理:毛工

原始結構圖:

平面布置圖:

客廳效果圖:

臥室效果圖:

小區外景圖:

業主、設計師、項目經理合影

開工現場禮炮慶祝~


8字整齊擺放好 由業主點燃


水電完工圖:



施工現場 效果圖

黃墻:防潮、防霉

中央空調



水壓測試:一般家庭是在3公斤左右,我們測試的是在10公斤,水壓指針沒有往下掉就屬于正常狀態

下水道臨時保護蓋,以防施工過程中堵塞


陽臺瓷磚鋪設:

衛生間瓷磚鋪設整齊:





煤氣表盤從開工到結束都要保護著

吊頂完工:


吊頂石膏板轉角處整張板切割“7”字形,轉角處不可出現接縫,防止開裂


采用的材料都是EO級大王椰實木免漆板



佳盛裝飾公司簡介:
2003年,衢州市佳盛裝飾工程有限公司成立。其業務范圍包括:住宅 、公寓、娛樂空間、辦公空間、陳列展館等工程的裝飾裝修、設計及施工。公司秉承“服務到永遠”的經營理念,誠信打造透明工程,全力營造放心消費環境。用質量來表現,用服務來關懷,依靠客戶口碑來不斷提升佳盛品牌的知名度和影響力。
一直以來,“佳盛人”以客戶的新房我的家為宗旨,以品牌建設為中心,致力于創造完美空間,展現精湛工藝。 在設計上,崇尚人性化、多元化、藝術化、更加強調功能、結構和形式的完整,追求材料、技術、空間的表現深度與精確,創造出別具風格的工作和生活環境。用領先的設計和專業的施工,做品味空間的引領者!
2010年被評為衢州市裝飾行業協會副會長單位;
2011年被衢州市工商行政管理局評為衢州市家庭裝飾消費維權示范單位;
2012年家裝設計大賽中被衢州市廣播電視總臺評為觀眾最喜愛家裝設計獎;
2013年被評為衢州市裝修行業12315消費者維權聯絡站;
2012-2013年被衢州市柯城區住房城鄉建設局評為衢州市家裝行業骨干企業;
2014年被裝飾協會評為衢州市首批倡導綠色裝修單位;
2014年被衢州市工商行政管理局評為衢州市誠信裝飾公司;
2011-2016年被衢州晚報評為十家最值得信賴的裝飾企業;
2016年被市場監督管理局評為衢州市誠信裝飾企業;
佳盛裝飾,期待與您共同長期發展!
公司榮譽:


衢州市佳盛裝飾工程有限公司
地址:浙江省衢州市西區雙嶺南路285號(翡翠灣小區東側)
電話:0570- 3068373
手機:13867013688
聯系人:周先生

- 上一個:衢州公館俞總 下一個:陽光水岸2-802返回產品列表



