公寓案例當前位置:首頁>產品展示>公寓案例

- 詳細介紹


項目地址:陽光水岸
項目風格:法式風格
設 計 師:龔方平
項目經理: 毛 工
開工日期:2017年4月6日設計說明:法式建筑十分推崇優雅、高貴和浪漫,它是一種基于對理想情景的考慮,追求建筑的詩意、詩境,力求在氣質上給人深度的感染。風格則偏于莊重大方,整個建筑多采用對稱造型,恢宏的氣勢,豪華舒適的居住空間,屋頂多采用孟莎式,坡度有轉折,上部平緩,下部陡直。屋頂上多有精致的老虎窗,且或圓或尖,造型各異。外墻多用石材或仿石才裝飾,細節處理上運用了法式廊柱、雕花、線條,制作工藝清細考究。法式建筑呈現出浪漫典雅風格。
設計師:龔方平
項目經理:毛工

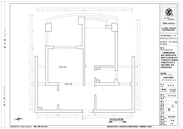
原始結構圖:

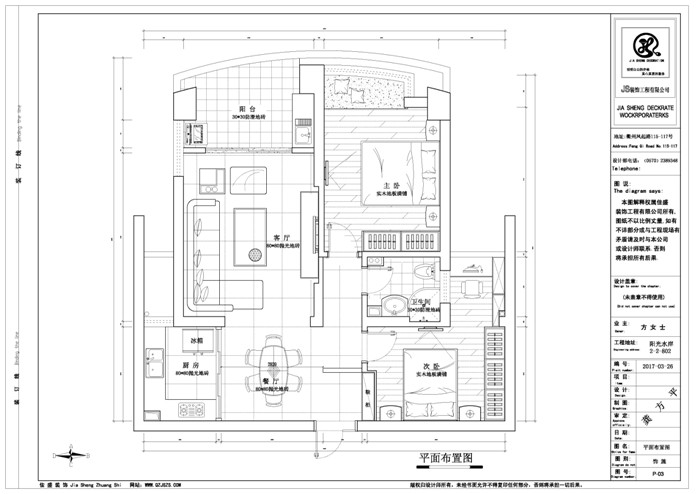
平面布置圖:

客廳效果圖:

小區外景圖:

業主、項目經理、設計師開工現場合影

禮炮慶祝~


施工現場各大規范:

門套保護好,以防施工過程中磕碰到

門口地貼保護:

窗戶玻璃保護:

煤氣表盤保護:

水電完工:



配電箱

黃墻:防潮、防霉



瓷磚整齊鋪設 保護膜全面覆蓋




衛生間瓷磚 地貼保護以防后期磕碰到


佳盛裝飾公司簡介:
2003年,衢州市佳盛裝飾工程有限公司成立。其業務范圍包括:住宅 、公寓、娛樂空間、辦公空間、陳列展館等工程的裝飾裝修、設計及施工。公司秉承“服務到永遠”的經營理念,誠信打造透明工程,全力營造放心消費環境。用質量來表現,用服務來關懷,依靠客戶口碑來不斷提升佳盛品牌的知名度和影響力。
一直以來,“佳盛人”以客戶的新房我的家為宗旨,以品牌建設為中心,致力于創造完美空間,展現精湛工藝。 在設計上,崇尚人性化、多元化、藝術化、更加強調功能、結構和形式的完整,追求材料、技術、空間的表現深度與精確,創造出別具風格的工作和生活環境。用領先的設計和專業的施工,做品味空間的引領者!
2010年被評為衢州市裝飾行業協會副會長單位;
2011年被衢州市工商行政管理局評為衢州市家庭裝飾消費維權示范單位;
2012年家裝設計大賽中被衢州市廣播電視總臺評為觀眾最喜愛家裝設計獎;
2013年被評為衢州市裝修行業12315消費者維權聯絡站;
2012-2013年被衢州市柯城區住房城鄉建設局評為衢州市家裝行業骨干企業;
2014年被裝飾協會評為衢州市首批倡導綠色裝修單位;
2014年被衢州市工商行政管理局評為衢州市誠信裝飾公司;
2011-2016年被衢州晚報評為十家最值得信賴的裝飾企業;
2016年被市場監督管理局評為衢州市誠信裝飾企業;
佳盛裝飾,期待與您共同長期發展!
公司榮譽:


衢州市佳盛裝飾工程有限公司
地址:浙江省衢州市西區雙嶺南路285號(翡翠灣小區東側)
電話:0570- 3068373
手機:13867013688
聯系人:周先生

衢州市佳盛裝飾工程有限公司
地址:浙江省衢州市西區雙嶺南路285號(翡翠灣小區東側)
電話:0570- 3068373
手機:13867013688
聯系人:周先生
網址:m.haomeiv.com
- 上一個:衢州公館俞總 下一個:翡翠灣碧桂園2-2-202返回產品列表



