公寓案例當前位置:首頁>產品展示>公寓案例

- 詳細介紹


項目地址:金河灣
項目風格:后現代風格
設 計 師:龔方平
項目經理:毛存忠
開工日期:2016年12月29日
設計說明:
后現代風格強調建筑及室內裝潢應該既具有歷史的延續性又不拘泥于傳統的思維方式,講究人情味并使用非傳統的色彩,以期創造一種溶感性與理性、集傳統與現代、揉大眾與行家于一體的“亦此亦彼”的建筑形象。將古典與現代,傳統與時尚的元素兼容并蓄,既對立又統一。設計手法因此也可以達到多元化,靈活多變,利用多種不同的材質組合空間,光亮的,暗淡的,華麗的,古樸的,平滑的,粗糙的相互穿插對比,形成有力量但不用生硬,有活力但不稚嫩的風格。
設計師:龔方平

項目經理:毛工

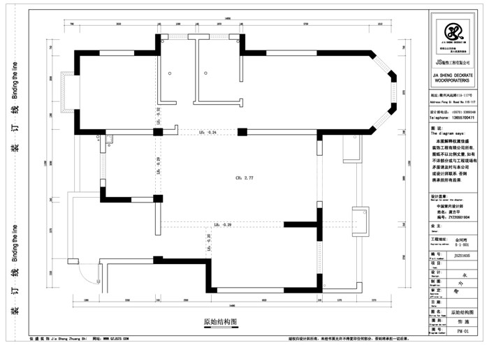
原始結構圖:

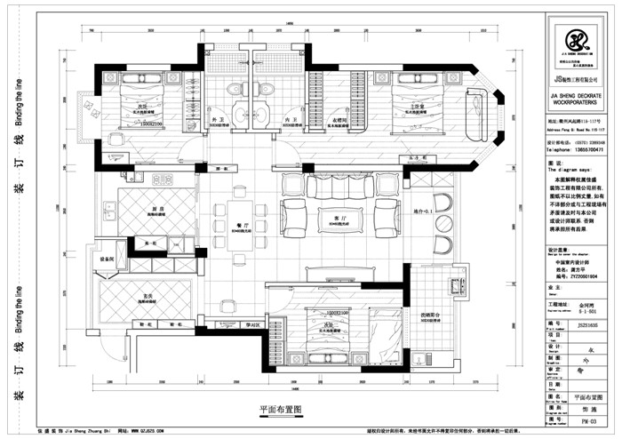
平面布置圖:

客廳效果圖:

小區外景圖:

開工現場業主、項目經理、設計師合影

現場開工禮炮慶祝:



開工現場門套保護:


煤氣表盤保護:

黃墻綠地施工圖:






水電完工圖:








泥工完工圖:


瓷磚鋪設好,保護膜全面覆蓋,以防后期安裝中刮擦到



陽臺瓷磚整齊鋪設

保護膜全面覆蓋

木工現場制作大王椰EO級實木免漆板

吊頂石膏板轉角處整張板切割“7”字形,轉角處不可出現接縫,防止開裂




佳盛裝飾公司簡介:
2003年,衢州市佳盛裝飾工程有限公司成立。其業務范圍包括:住宅 、公寓、娛樂空間、辦公空間、陳列展館等工程的裝飾裝修、設計及施工。公司秉承“服務到永遠”的經營理念,誠信打造透明工程,全力營造放心消費環境。用質量來表現,用服務來關懷,依靠客戶口碑來不斷提升佳盛品牌的知名度和影響力。
一直以來,“佳盛人”以客戶的新房我的家為宗旨,以品牌建設為中心,致力于創造完美空間,展現精湛工藝。 在設計上,崇尚人性化、多元化、藝術化、更加強調功能、結構和形式的完整,追求材料、技術、空間的表現深度與精確,創造出別具風格的工作和生活環境。用領先的設計和專業的施工,做品味空間的引領者!
2010年被評為衢州市裝飾行業協會副會長單位;
2011年被衢州市工商行政管理局評為衢州市家庭裝飾消費維權示范單位;
2012年家裝設計大賽中被衢州市廣播電視總臺評為觀眾最喜愛家裝設計獎;
2013年被評為衢州市裝修行業12315消費者維權聯絡站;
2012-2013年被衢州市柯城區住房城鄉建設局評為衢州市家裝行業骨干企業;
2014年被裝飾協會評為衢州市首批倡導綠色裝修單位;
2014年被衢州市工商行政管理局評為衢州市誠信裝飾公司;
2011-2016年被衢州晚報評為十家最值得信賴的裝飾企業;
2016年被市場監督管理局評為衢州市誠信裝飾企業;
佳盛裝飾,期待與您共同長期發展!
公司榮譽:


衢州市佳盛裝飾工程有限公司
地址:浙江省衢州市西區雙嶺南路285號(翡翠灣小區東側)
電話:0570- 3068373
手機:13867013688
聯系人:周先生

衢州市佳盛裝飾工程有限公司
地址:浙江省衢州市西區雙嶺南路285號(翡翠灣小區東側)
電話:0570- 3068373
手機:13867013688
聯系人:周先生
網址:m.haomeiv.com
- 上一個:衢州公館俞總 下一個:月亮灣2-2-102返回產品列表



