公寓案例當前位置:首頁>產品展示>公寓案例

- 詳細介紹


項目地址:月亮灣
項目風格:新中式
設 計 師:龔方平
項目經理: 毛 工
開工日期:2016年12月25日設計說明:
新中式風格誕生于中國傳統文化復興的新時期,伴隨著國力增強,民族意識逐漸復蘇,人們開始從紛亂 的“摹仿”和“拷貝”中整理出頭緒。在探尋中國設計界的本土意識之初,逐漸成熟的新一代設計隊伍 和消費市場孕育出含蓄秀美的新中式風格。在中國文化風靡全球的現今時代,中式元素與現代材質的巧 妙兼柔,明清家具、窗欞、布藝床品相互輝映,再現了移步變景的精妙。
設計師:龔方平

項目經理:毛工

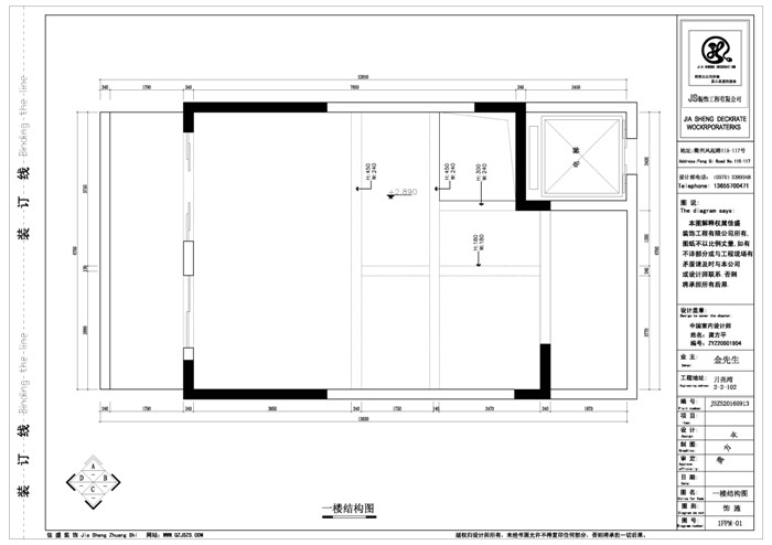
一樓原始結構圖:

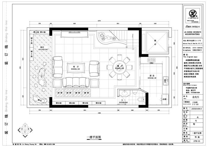
一樓平面布置圖:

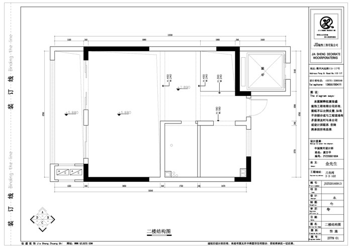
二樓原始結構圖:

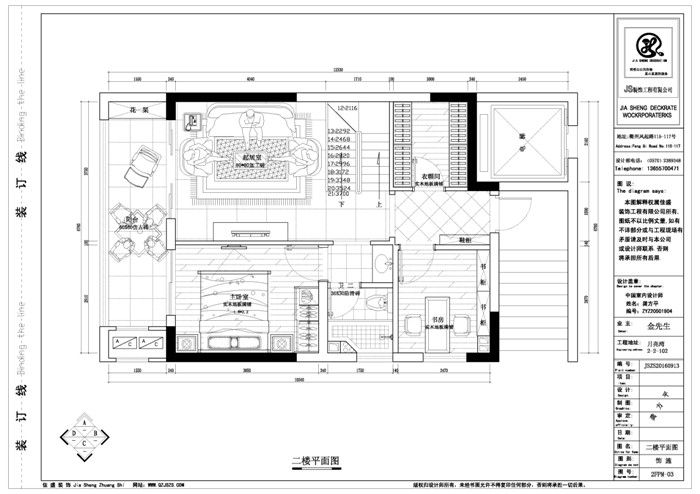
二樓平面布置圖:

三樓原始結構圖:

三樓平面布置圖:

一樓客廳效果圖:

二樓客廳效果圖:

起居室效果圖:

主臥效果圖:

與業主簽約現場:

業主砸金蛋:



小區外景圖:


業主、設計師、項目經理合影:

現場禮炮慶祝:





開工現場門套保護:


開工現在注意事項:

煤氣表盤保護:


開工現場門窗保護:



樓板現澆:







水電完工圖:

黃墻的作用是梅雨季節起到防潮、抗菌的作用






試水壓



瓷磚整齊鋪設



瓷磚鋪設好 保護膜全面覆蓋以防刮擦





金總新家完工、新中式出爐咯!


水藍色的窗簾 給客廳增加溫馨感~



樓梯入口、上二樓臥室、


佳盛裝飾公司簡介:
2003年,衢州市佳盛裝飾工程有限公司成立。其業務范圍包括:住宅 、公寓、娛樂空間、辦公空間、陳列展館等工程的裝飾裝修、設計及施工。公司秉承“服務到永遠”的經營理念,誠信打造透明工程,全力營造放心消費環境。用質量來表現,用服務來關懷,依靠客戶口碑來不斷提升佳盛品牌的知名度和影響力。
一直以來,“佳盛人”以客戶的新房我的家為宗旨,以品牌建設為中心,致力于創造完美空間,展現精湛工藝。 在設計上,崇尚人性化、多元化、藝術化、更加強調功能、結構和形式的完整,追求材料、技術、空間的表現深度與精確,創造出別具風格的工作和生活環境。用領先的設計和專業的施工,做品味空間的引領者!
2010年被評為衢州市裝飾行業協會副會長單位;
2011年被衢州市工商行政管理局評為衢州市家庭裝飾消費維權示范單位;
2012年家裝設計大賽中被衢州市廣播電視總臺評為觀眾最喜愛家裝設計獎;
2013年被評為衢州市裝修行業12315消費者維權聯絡站;
2012-2013年被衢州市柯城區住房城鄉建設局評為衢州市家裝行業骨干企業;
2014年被裝飾協會評為衢州市首批倡導綠色裝修單位;
2014年被衢州市工商行政管理局評為衢州市誠信裝飾公司;
2011-2016年被衢州晚報評為十家最值得信賴的裝飾企業;
2016年被市場監督管理局評為衢州市誠信裝飾企業;
佳盛裝飾,期待與您共同長期發展!
公司榮譽:


衢州市佳盛裝飾工程有限公司
地址:浙江省衢州市西區雙嶺南路285號(翡翠灣小區東側)
電話:0570- 3068373
手機:13867013688
聯系人:周先生

衢州市佳盛裝飾工程有限公司
地址:浙江省衢州市西區雙嶺南路285號(翡翠灣小區東側)
電話:0570- 3068373
手機:13867013688
聯系人:周先生
網址:m.haomeiv.com
- 上一個:衢州公館俞總 下一個:香榭麗舍19-4-402返回產品列表



