公寓案例當前位置:首頁>產品展示>公寓案例

- 詳細介紹


項目地址:碧桂園翡翠灣
項目風格:美式風格
設 計 師:龔方平
項目經理:毛 工
開工日期:2018年5月8日
設計說明:
美式風格:家居自由隨意、簡潔懷舊、實用舒適;暗棕、土黃為主的自然色彩;歐洲皇室家具平民化、古典家具簡單化;家具寬大、實用舒適;側重壁爐與手工
裝飾,追求粗獷大氣、天然隨意
設計師:龔方平

項目經理:毛工
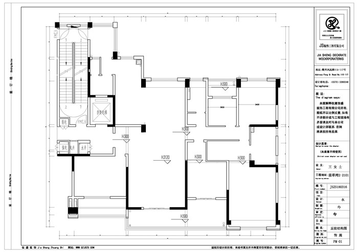
原始結構圖:

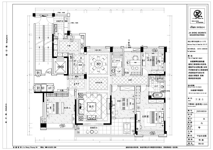
平面布置圖:

客廳效果圖:

餐廳效果圖:

主臥室效果圖:

業主、設計師、項目經理開工合影:

禮炮慶祝開工大吉:

門套保護以防施工過程磕碰到:

施工四大規范
開工第一錘由業主響亮敲響:

窗戶玻璃保護:

下水管保護蓋以防堵塞:

臨時馬桶:

水電完工:

水管頂面制作外套紅藍保溫管(有問題好維修不用拆地板砸地磚不會造成更大的損失)

藍色為弱電,紅色為強電,強弱電分開鋪設以防干擾





泥工完工:







吊頂完工:





公司榮譽:


衢州市佳盛裝飾工程有限公司
地址:浙江省衢州市西區雙嶺南路285號(翡翠灣小區東側)
電話:0570- 3068373
手機:13867013688
聯系人:周先生

衢州市佳盛裝飾工程有限公司
地址:浙江省衢州市西區雙嶺南路285號(翡翠灣小區東側)
電話:0570- 3068373
手機:13867013688
聯系人:周先生
網址:m.haomeiv.com
- 上一個:衢州公館俞總 下一個:月亮灣2-3-1101返回產品列表



