公寓案例當前位置:首頁>產品展示>公寓案例

- 詳細介紹


項目地址:郁金香郡
項目風格:北歐風格
設 計 師:林紫娟
項目經理:周 工
開工日期:2018年4月1日
設計說明:北歐風格是注重人與自然、社會、與環境的有機的科學的結合,它的身上集中體現了綠色設計、環保設計、可持續發展設計的理念;它顯示了對手工藝傳統和天然材料的尊重與偏愛;它在形式上更為柔和與有機,因而富有濃厚的人情味;它的家居風格很大程度體現在家具的設計上。注重功能,簡化設計,線條簡練,多用明快的中性色。
設計師:林紫娟

項目經理:周工

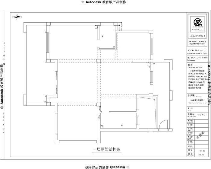
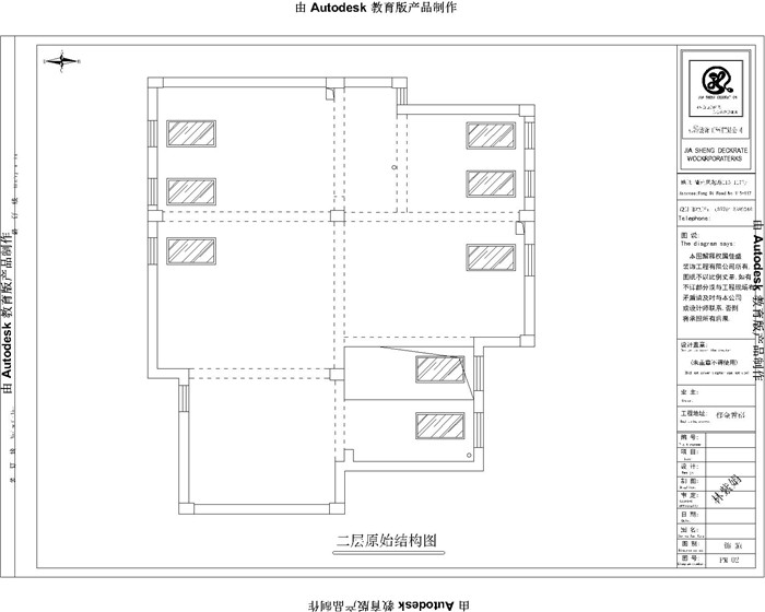
原始結構圖:


平面布置圖:


客廳效果圖:

臥室效果圖:

業主、設計師、項目經理開工合影:

禮炮慶祝開工大吉:

舉杯慶祝 開工順順利利:

開工第一錘由業主敲響:

門套保護以防施工過程磕碰到:


煤氣表盤保護:

下水管保護蓋以防堵塞:

水電完工圖:






衛生間藍墻防水:


公司榮譽:


衢州市佳盛裝飾工程有限公司
地址:浙江省衢州市西區雙嶺南路285號(翡翠灣小區東側)
電話:0570- 3068373
手機:13867013688
聯系人:周先生

衢州市佳盛裝飾工程有限公司
地址:浙江省衢州市西區雙嶺南路285號(翡翠灣小區東側)
電話:0570- 3068373
手機:13867013688
聯系人:周先生
網址:m.haomeiv.com
- 上一個:衢州公館俞總 下一個:翡翠灣5-1602返回產品列表



