公寓案例當前位置:首頁>產品展示>公寓案例

- 詳細介紹

項目地址:香榭麗舍
項目風格:美式風格
設 計 師: 欒準植
項目經理: 周 工
開工日期:2017年5月19日設計說明:美式簡約裝修風格,以簡單的實用性為主,這種設計風格深受人們的喜歡,一個簡單干凈的空間更讓人感到舒適,復雜的外部設計反而容易讓人疲憊。整體設計上給人帶來清爽明快之感,寬敞的空間布局讓人更加舒暢,單一的色調讓人百看不膩。空間布局、色彩運用、材質的選擇,都突出了簡約又大氣的風格
設計師:欒準植

項目經理:周工

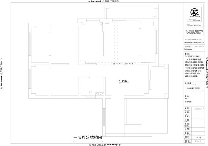
一樓原始結構圖:

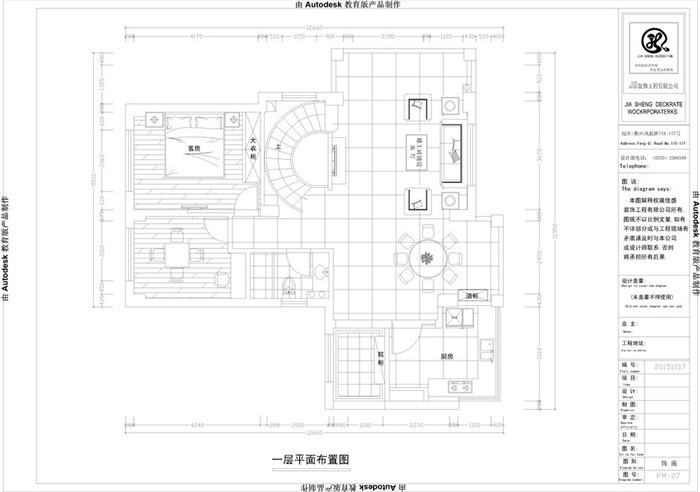
一樓平面布置圖:

二樓原始結構圖:

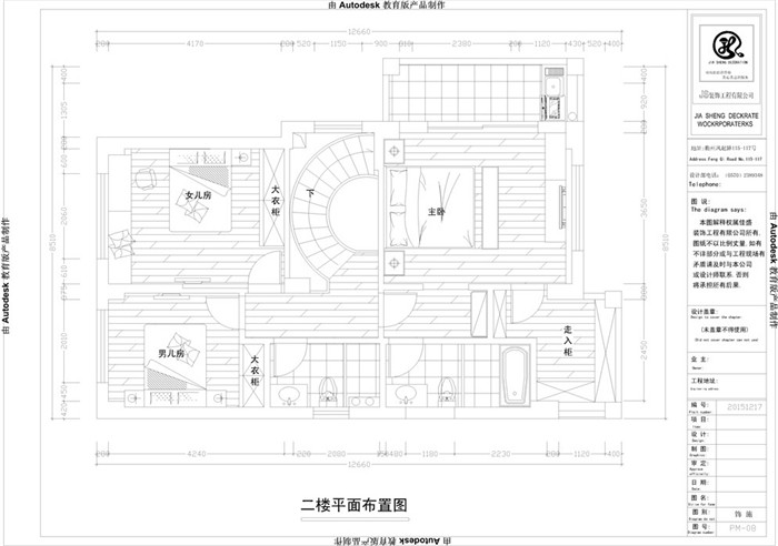
二樓平面布置圖:

客廳效果圖:

主臥效果圖:

男孩房效果圖:

公主房效果圖:

小區外景:

開工現場業主、設計師、項目經理合影

開工禮炮慶祝


開工8字整齊擺好 由業主點燃


開工第一錘 業主響亮敲響

開工大吉 順順利利

水電完工:



黃墻:防潮、防霉



頂面外套為紅藍保溫管制作

藍墻防水



水壓屬于正常狀態,一般普通家庭的水壓是在3公斤左右,
我們測試的是在10公斤,水壓指針沒有往下掉 就屬于正常狀態

水電完工 巡檢:



瓷磚鋪設完畢,全面覆蓋保護膜





佳盛裝飾公司簡介:
2003年,衢州市佳盛裝飾工程有限公司成立。其業務范圍包括:住宅 、公寓、娛樂空間、辦公空間、陳列展館等工程的裝飾裝修、設計及施工。公司秉承“服務到永遠”的經營理念,誠信打造透明工程,全力營造放心消費環境。用質量來表現,用服務來關懷,依靠客戶口碑來不斷提升佳盛品牌的知名度和影響力。
一直以來,“佳盛人”以客戶的新房我的家為宗旨,以品牌建設為中心,致力于創造完美空間,展現精湛工藝。 在設計上,崇尚人性化、多元化、藝術化、更加強調功能、結構和形式的完整,追求材料、技術、空間的表現深度與精確,創造出別具風格的工作和生活環境。用領先的設計和專業的施工,做品味空間的引領者!
2010年被評為衢州市裝飾行業協會副會長單位;
2011年被衢州市工商行政管理局評為衢州市家庭裝飾消費維權示范單位;
2012年家裝設計大賽中被衢州市廣播電視總臺評為觀眾最喜愛家裝設計獎;
2013年被評為衢州市裝修行業12315消費者維權聯絡站;
2012-2013年被衢州市柯城區住房城鄉建設局評為衢州市家裝行業骨干企業;
2014年被裝飾協會評為衢州市首批倡導綠色裝修單位;
2014年被衢州市工商行政管理局評為衢州市誠信裝飾公司;
2011-2016年被衢州晚報評為十家最值得信賴的裝飾企業;
2016年被市場監督管理局評為衢州市誠信裝飾企業;
佳盛裝飾,期待與您共同長期發展!
公司榮譽:


衢州市佳盛裝飾工程有限公司
地址:浙江省衢州市西區雙嶺南路285號(翡翠灣小區東側)
電話:0570- 3068373
手機:13867013688
聯系人:周先生
網址:m.haomeiv.com

衢州市佳盛裝飾工程有限公司
地址:浙江省衢州市西區雙嶺南路285號(翡翠灣小區東側)
電話:0570- 3068373
手機:13867013688
聯系人:周先生
網址:m.haomeiv.com
- 上一個:衢州公館俞總 下一個:美麗東城7-1-1304返回產品列表



