別墅案例 當前位置:首頁>產品展示>別墅案例

- 詳細介紹


項目地址:歐景御花苑
項目風格:新中式風格
設計師: 林紫娟項目經理:周 工
開工日期:2017年3月12日
設計說明:新中式風格誕生于中國傳統文化復興的新時期,伴隨著國力增強,民族意識逐漸復蘇,人們開始從紛亂 的“摹仿”和“拷貝”中整理出頭緒。在探尋中國設計界的本土意識之初,逐漸成熟的新一代設計隊伍 和消費市場孕育出含蓄秀美的新中式風格。在中國文化風靡全球的現今時代,中式元素與現代材質的巧 妙兼柔,明清家具、窗欞、布藝床品相互輝映,再現了移步變景的精妙小品。
設計師:林紫娟

項目經理:周工

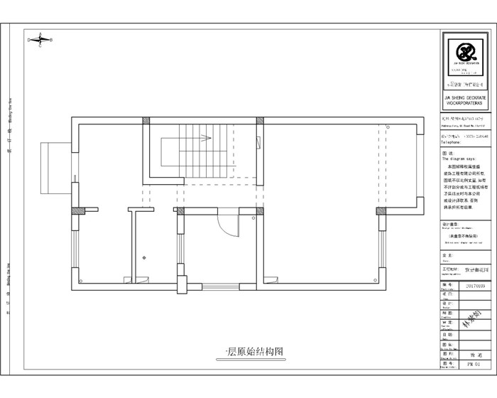
一層原始結構圖:

一層平面布置圖:

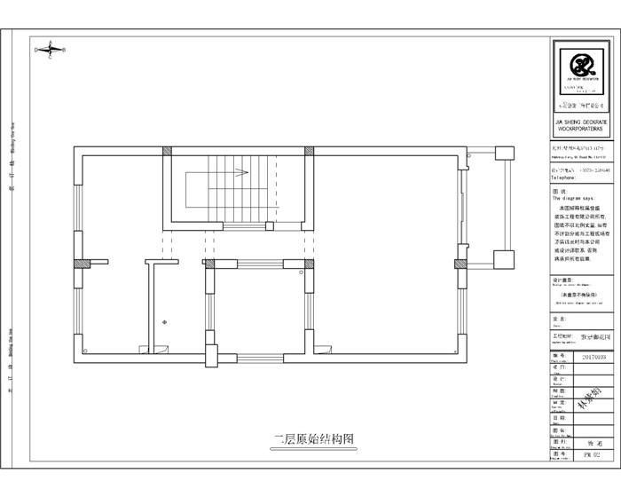
二層原始結構圖:

二層平面布置圖:

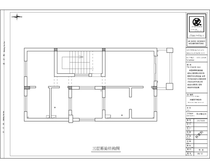
三層原始結構圖:

三層平面布置圖:

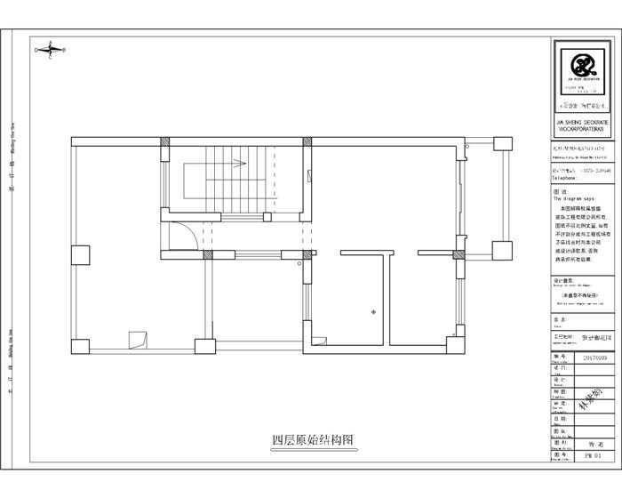
四層原始結構圖:

四層平面布置圖:

客廳效果圖:

客廳沙發背景墻:

餐廳效果圖:

主臥效果圖:

二樓主臥效果圖:
三主臥效果圖:
別墅外景圖:


開工現場8字已擺好~

由于業主在上班沒時間來,由佳盛同仁負責開工~

放禮炮慶祝下開工大吉~


禮炮放完,由項目經理敲響開工第一錘~

設計師和項目經理現場溝通方案~


開工現場煤氣表盤保護~

臨時馬桶

水電圖:









水壓屬于正常狀態,一般普通家庭的水壓是在3公斤左右,我們測試的是在10公斤,水壓指針沒有往下掉就屬于正常狀態


泥工制作:




木工完工:



吊頂完工:




8.27由項目經理帶隊巡檢:
討論外墻粉刷

業主和設計師溝通 前面線條制作

二樓主臥背景墻 制作溝通


小孩房衣柜柜門做開門


客廳沙發線條簡潔的歐式沙,高貴、典雅又不失浪漫氣質





臥室布置較為溫馨、主要以功能性、使用舒適作為考慮重點、



2003年,衢州市佳盛裝飾工程有限公司成立。其業務范圍包括:住宅 、公寓、娛樂空間、辦公空間、陳列展館等工程的裝飾裝修、設計及施工。公司秉承“服務到永遠”的經營理念,誠信打造透明工程,全力營造放心消費環境。用質量來表現,用服務來關懷,依靠客戶口碑來不斷提升佳盛品牌的知名度和影響力。
一直以來,“佳盛人”以客戶的新房我的家為宗旨,以品牌建設為中心,致力于創造完美空間,展現精湛工藝。 在設計上,崇尚人性化、多元化、藝術化、更加強調功能、結構和形式的完整,追求材料、技術、空間的表現深度與精確,創造出別具風格的工作和生活環境。用領先的設計和專業的施工,做品味空間的引領者!
2010年被評為衢州市裝飾行業協會副會長單位;
2011年被衢州市工商行政管理局評為衢州市家庭裝飾消費維權示范單位;
2012年家裝設計大賽中被衢州市廣播電視總臺評為觀眾最喜愛家裝設計獎;
2013年被評為衢州市裝修行業12315消費者維權聯絡站;
2012-2013年被衢州市柯城區住房城鄉建設局評為衢州市家裝行業骨干企業;
2014年被裝飾協會評為衢州市首批倡導綠色裝修單位;
2014年被衢州市工商行政管理局評為衢州市誠信裝飾公司;
2011-2016年被衢州晚報評為十家最值得信賴的裝飾企業;
2016年被市場監督管理局評為衢州市誠信裝飾企業;
佳盛裝飾,期待與您共同長期發展!
公司榮譽:


衢州市佳盛裝飾工程有限公司
地址:浙江省衢州市西區雙嶺南路285號(翡翠灣小區東側)
電話:0570- 3068373
手機:13867013688
聯系人:周先生
網址:m.haomeiv.com
衢州市佳盛裝飾工程有限公司
地址:浙江省衢州市西區雙嶺南路285號(翡翠灣小區東側)
電話:0570- 3068373
手機:13867013688
聯系人:周先生
網址:m.haomeiv.com
- 上一個:香格里拉5-1 下一個:歐景御花苑19-1返回產品列表



