別墅案例 當前位置:首頁>產品展示>別墅案例

- 詳細介紹


項目地址:歐景御花園
項目風格:歐美風格
設計師:林紫娟
項目經理:毛存忠
開工日期:2016年12月9日
設計說明: 歐美現代風格具有簡單、抽象、明快的特點。而且多采用現代感很強的組合家具,顏色選用白色或流行色,室內色彩不多,一般不超過三種顏色,且色彩以塊狀為主。窗簾、地毯和床罩的選擇比較素雅,紋樣多采用二方連續或四方連續且簡單抽象,拒絕巴洛克式的繁復。其他的室內飾品要求造型簡潔,色彩統一。燈光以暖色調為主。
設計師:林紫娟

項目經理:毛工

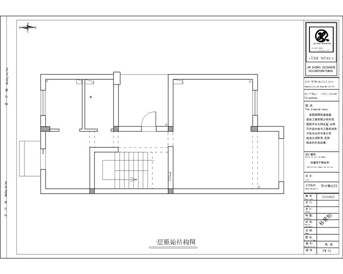
一樓原始結構圖:

一樓平面布置圖:

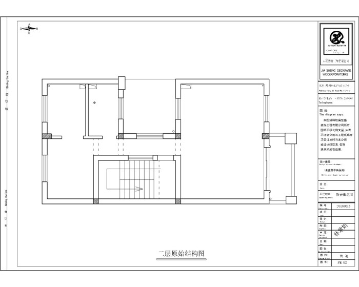
二樓原始結構圖:

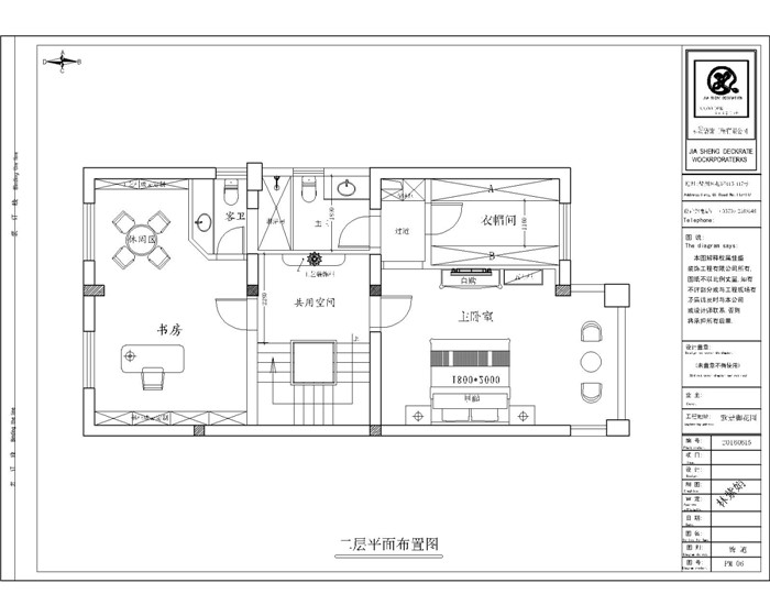
二樓平面布置圖:

三樓原始結構圖:

三樓平面布置圖:

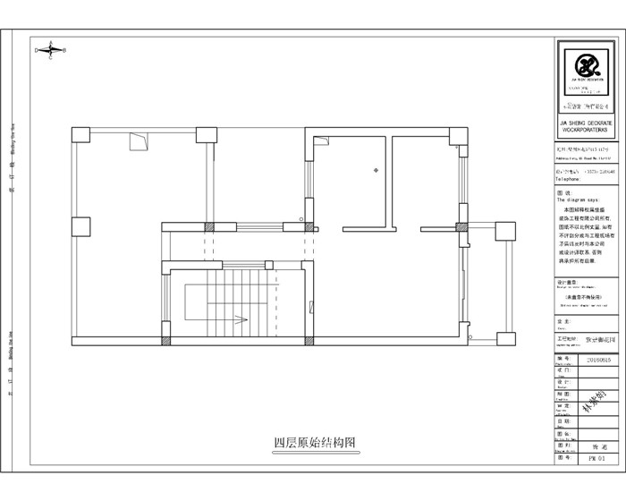
四樓原始結構圖:

四樓平面布置圖:

客廳效果圖:

主臥效果圖:

客房效果圖:

小孩房效果圖:

餐廳效果圖:

現場開工(公寓外景照)

現場開工,業主,設計師,項目經理合影

開工禮炮慶祝:


開工儀式:



開工現場施工規范:

黃墻、綠地:






水電完工圖:













泥工完工圖:

施工現場(水電、泥工、木工、油漆施工規范)

瓷磚整齊鋪設






吊頂制作:



臥室衣柜

走入式衣柜




佳盛裝飾公司簡介:
2003年,衢州市佳盛裝飾工程有限公司成立。其業務范圍包括:住宅 、公寓、娛樂空間、辦公空間、陳列展館等工程的裝飾裝修、設計及施工。公司秉承“服務到永遠”的經營理念,誠信打造透明工程,全力營造放心消費環境。用質量來表現,用服務來關懷,依靠客戶口碑來不斷提升佳盛品牌的知名度和影響力。
一直以來,“佳盛人”以客戶的新房我的家為宗旨,以品牌建設為中心,致力于創造完美空間,展現精湛工藝。 在設計上,崇尚人性化、多元化、藝術化、更加強調功能、結構和形式的完整,追求材料、技術、空間的表現深度與精確,創造出別具風格的工作和生活環境。用領先的設計和專業的施工,做品味空間的引領者!
2010年被評為衢州市裝飾行業協會副會長單位;
2011年被衢州市工商行政管理局評為衢州市家庭裝飾消費維權示范單位;
2012年家裝設計大賽中被衢州市廣播電視總臺評為觀眾最喜愛家裝設計獎;
2013年被評為衢州市裝修行業12315消費者維權聯絡站;
2012-2013年被衢州市柯城區住房城鄉建設局評為衢州市家裝行業骨干企業;
2014年被裝飾協會評為衢州市首批倡導綠色裝修單位;
2014年被衢州市工商行政管理局評為衢州市誠信裝飾公司;
2011-2016年被衢州晚報評為十家最值得信賴的裝飾企業;
2016年被市場監督管理局評為衢州市誠信裝飾企業;
佳盛裝飾,期待與您共同長期發展!
公司榮譽:


衢州市佳盛裝飾工程有限公司
地址:浙江省衢州市西區雙嶺南路285號(翡翠灣小區東側)
電話:0570- 3068373
手機:13867013688
聯系人:周先生

衢州市佳盛裝飾工程有限公司
地址:浙江省衢州市西區雙嶺南路285號(翡翠灣小區東側)
電話:0570- 3068373
手機:13867013688
聯系人:周先生
網址:m.haomeiv.com
- 上一個:香格里拉5-1 下一個:新湖蘭馨苑39-1401返回產品列表



